OUTLINE 概要
東京都港区芝二丁目7番17号 GoogleMapで見る
2026/01 (予定)
地上21階、地下2階
1,284.25坪 (4,245.34㎡)
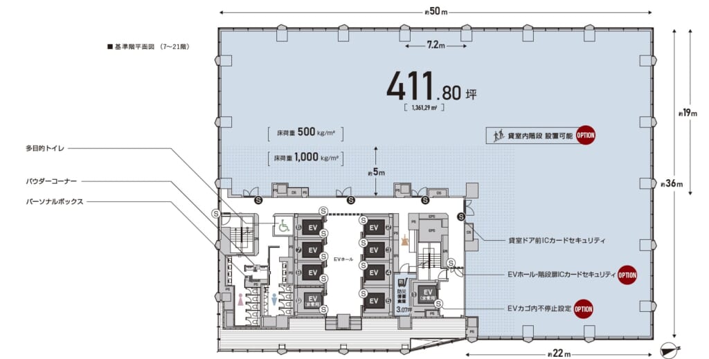
411.80坪 (1,361.28㎡)
12,012.84坪 (39,710.84㎡)
6,177.05坪 (20,419.47㎡)
日建設計/竹中工務店
FACILITY 設備・特長
設備
3.0m
10cm
500kg/㎡、一部 1,000kg/㎡
60VA/㎡
完全個別空調 (19ゾーン/フロア)
ビルの特徴
特別高圧22kV 3回線スポットネットワーク受電方式
重油発電 (72時間分)
免震構造
多目的トイレ全フロア設置
貸室扉ICカード対応、貸会議室併設
FLOOR フロア平面図
